Menu
Home
Fact Sheet
Developer
Location
Site/Floor Plans
Units
Gallery
Peak Residence
Site Plans
Floor Plans
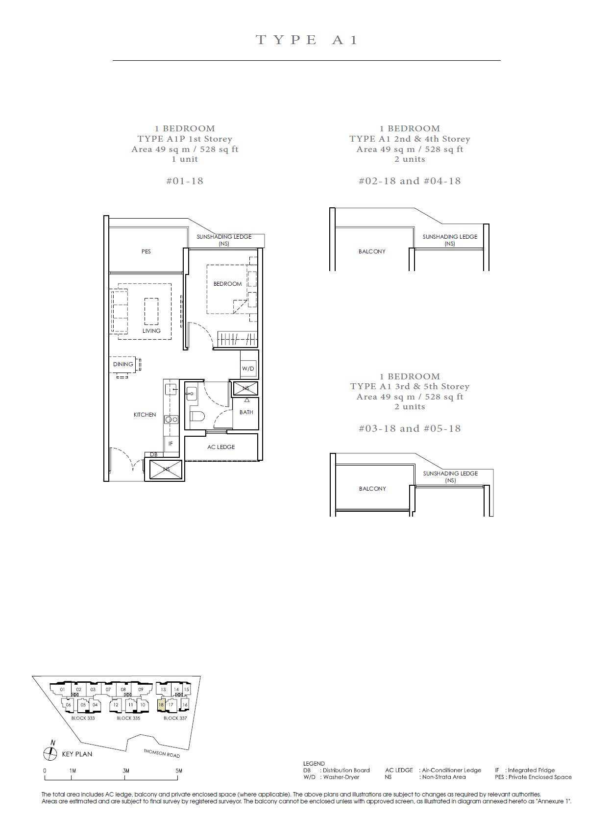
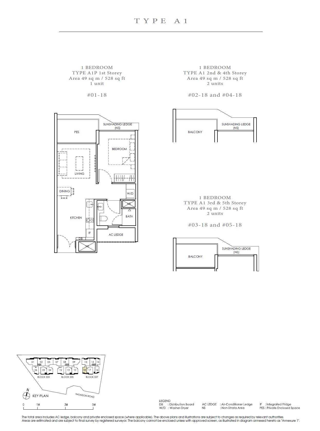
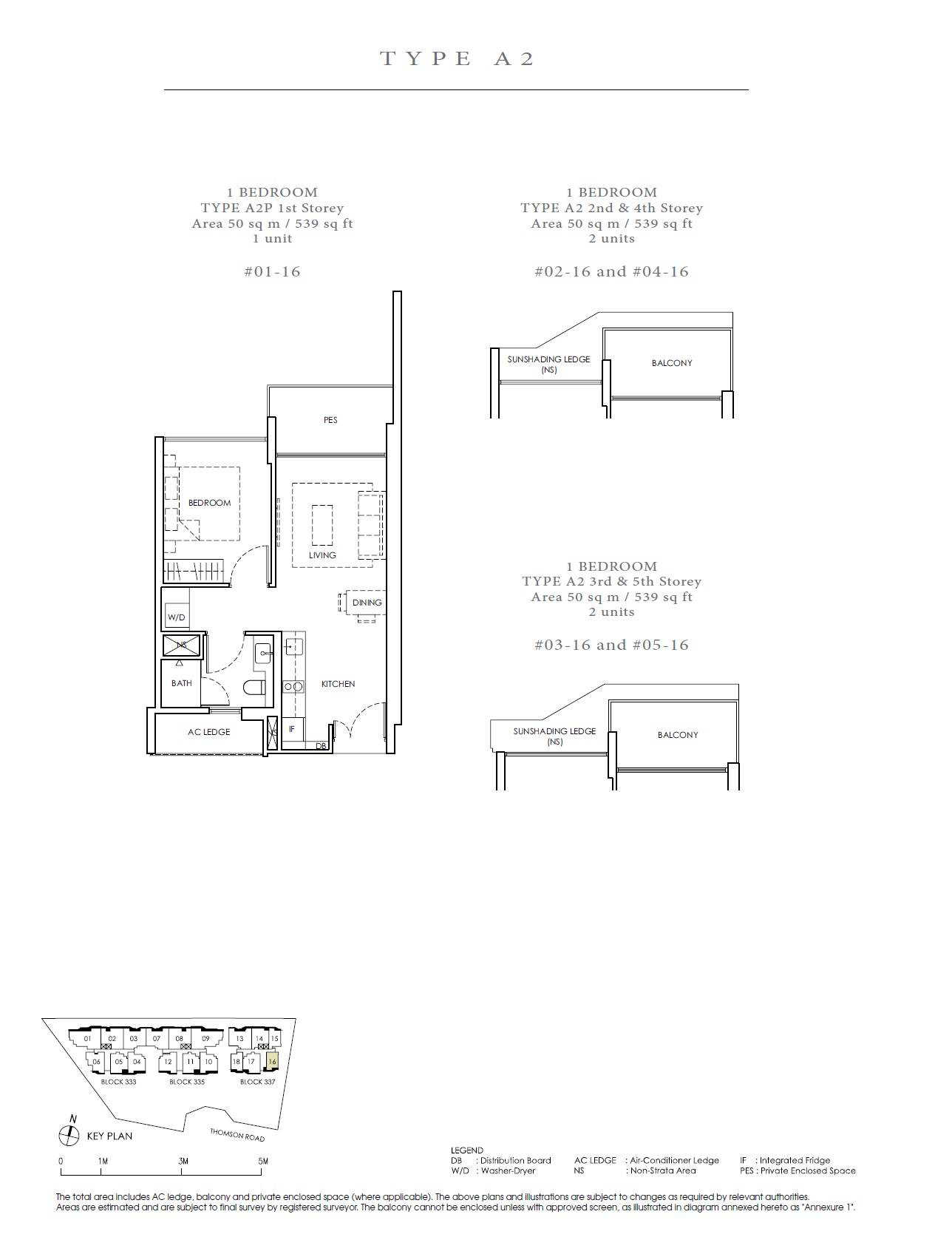
1 Bedroom
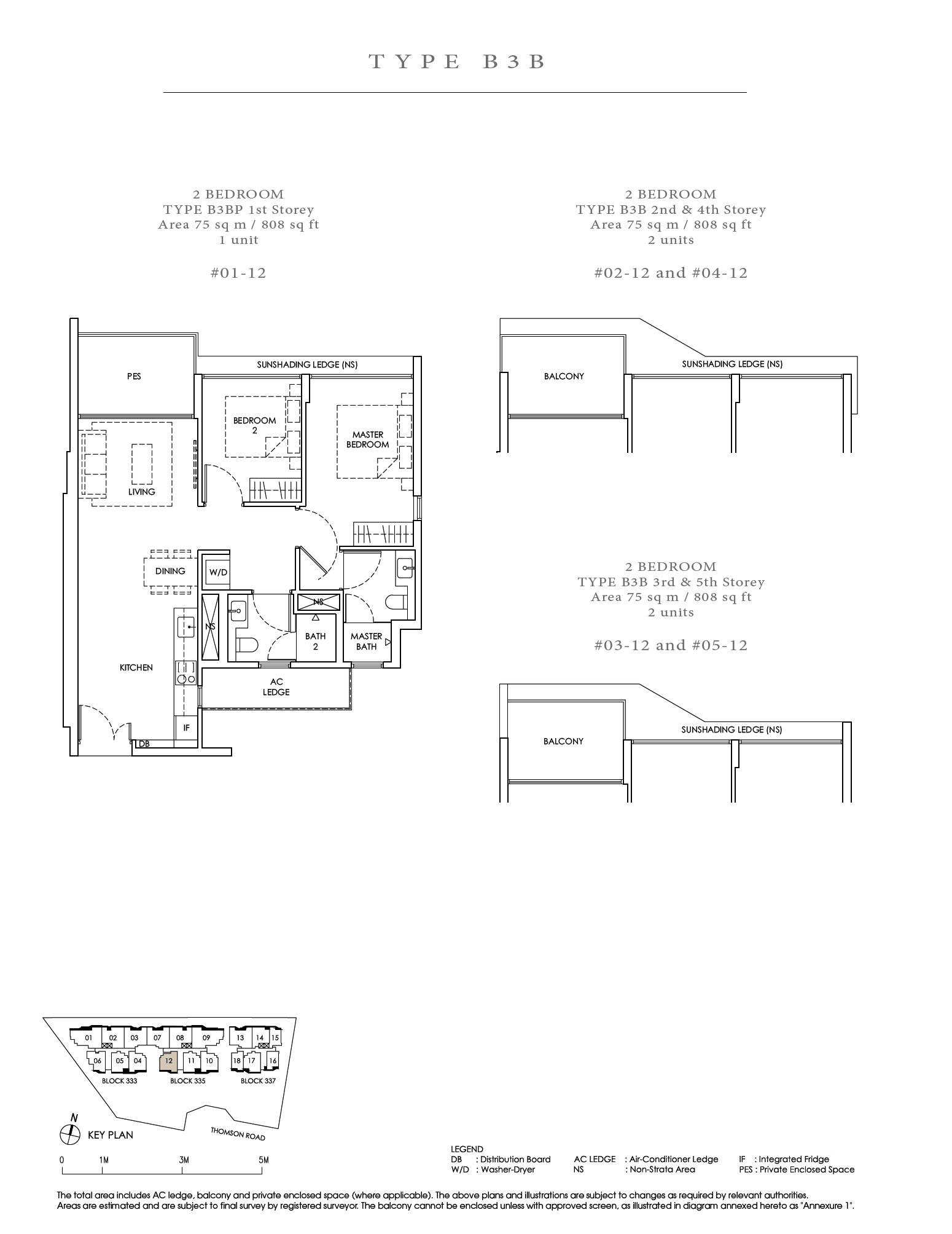
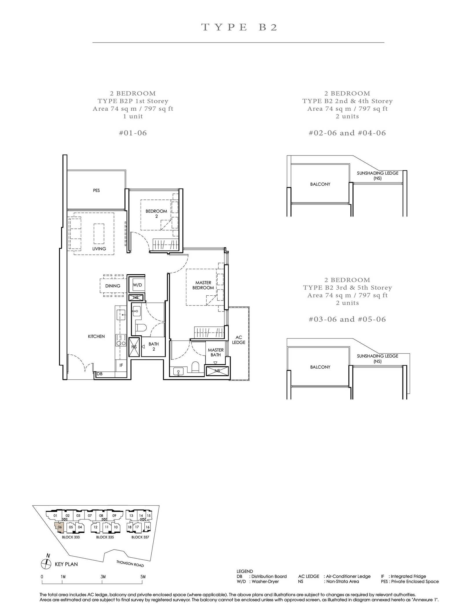
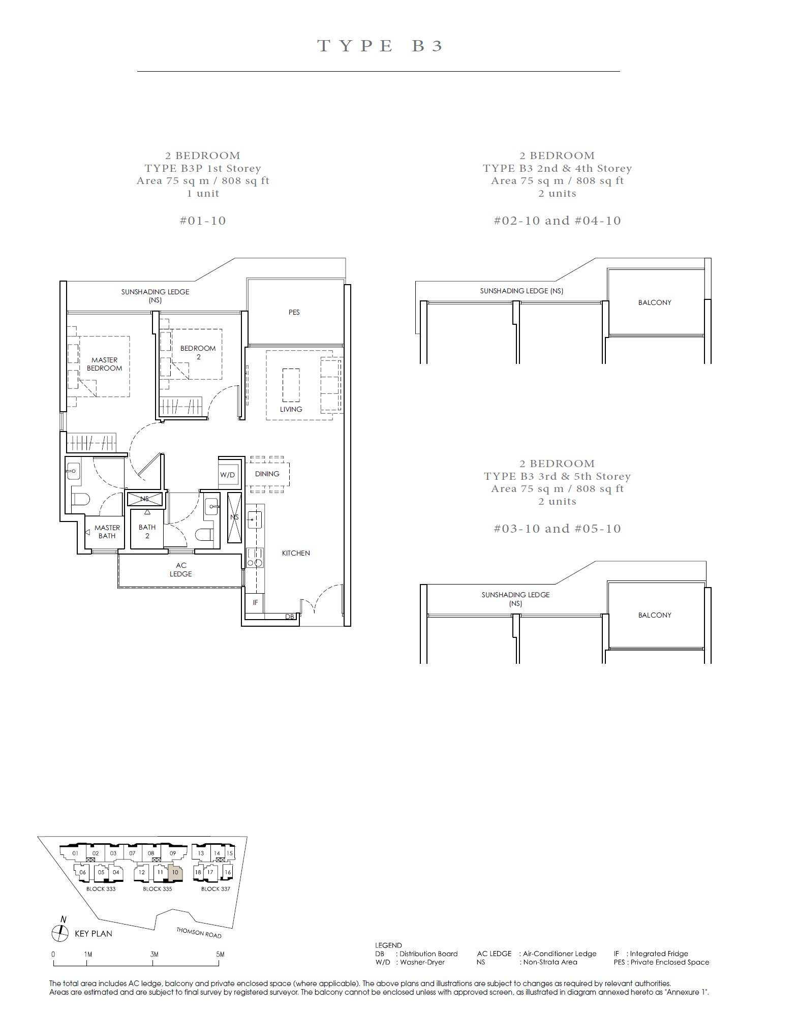
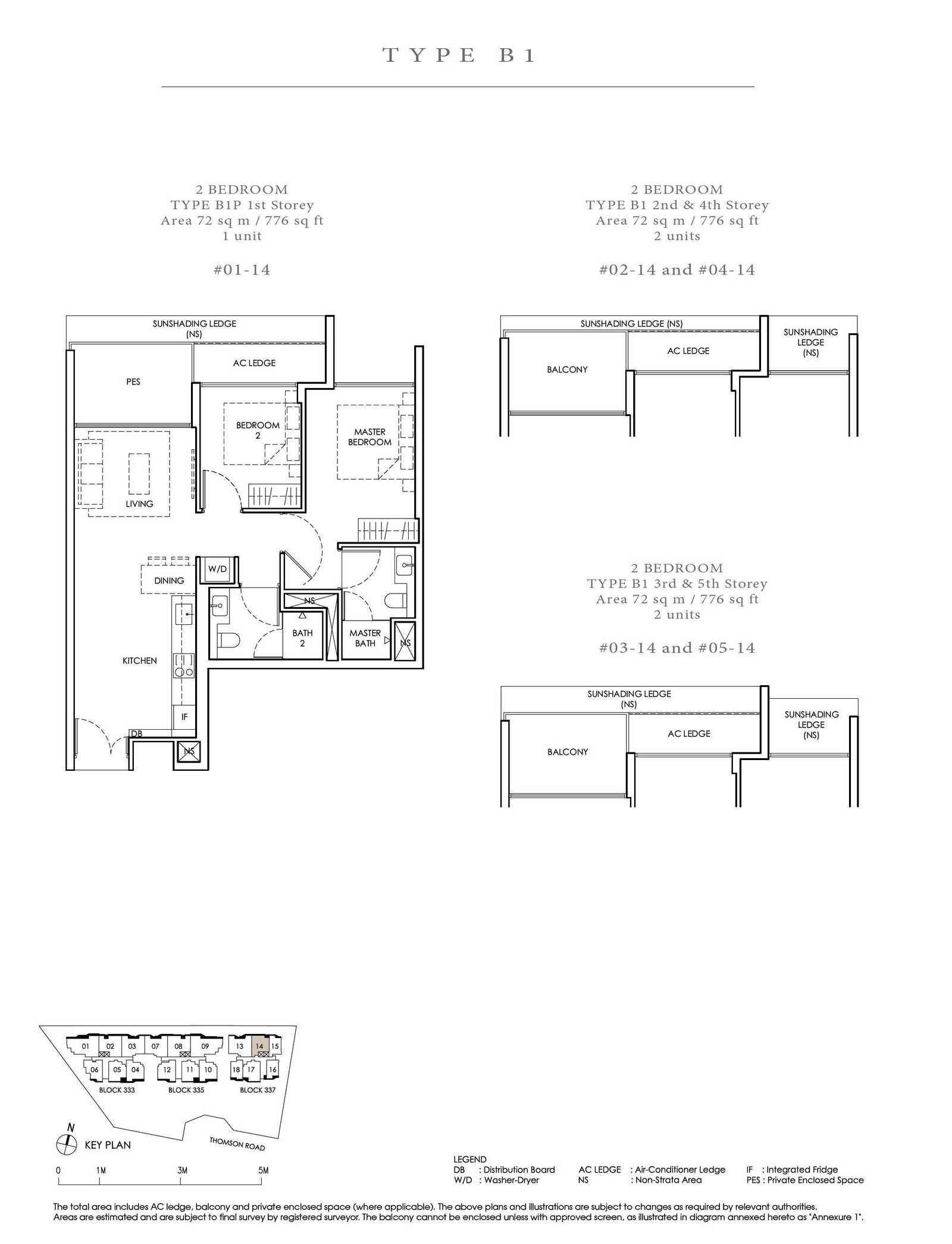
2 Bedroom
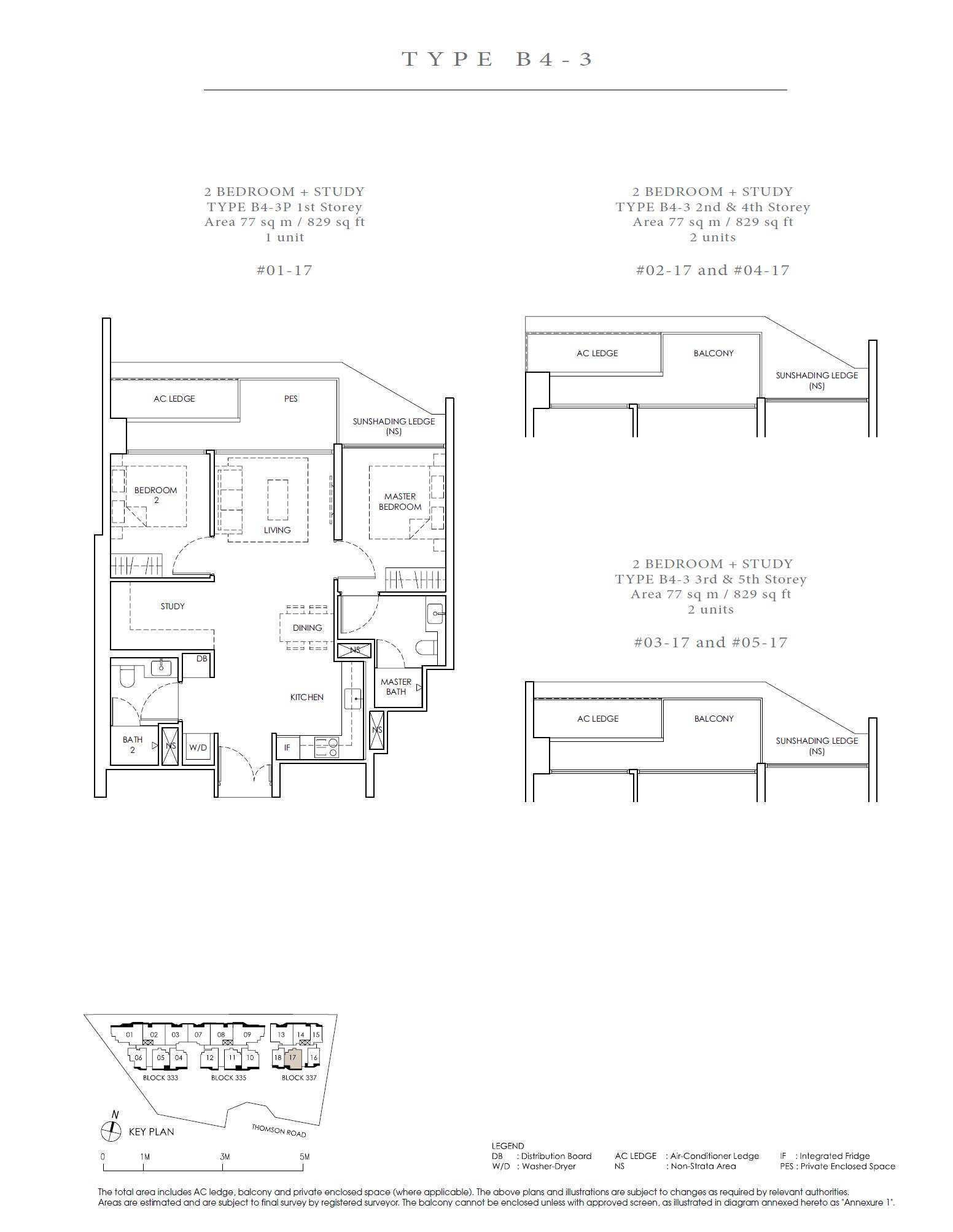
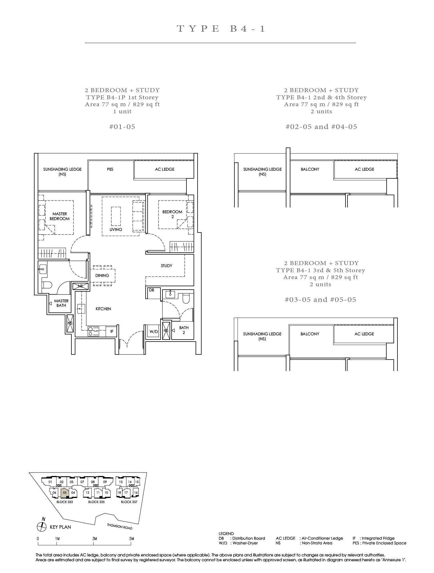
2 Bedroom + Study
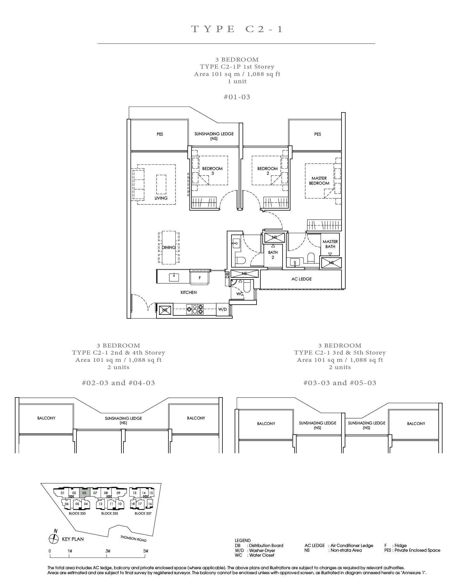
3 Bedroom
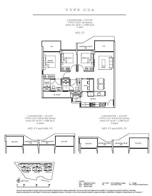
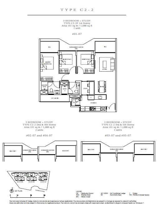
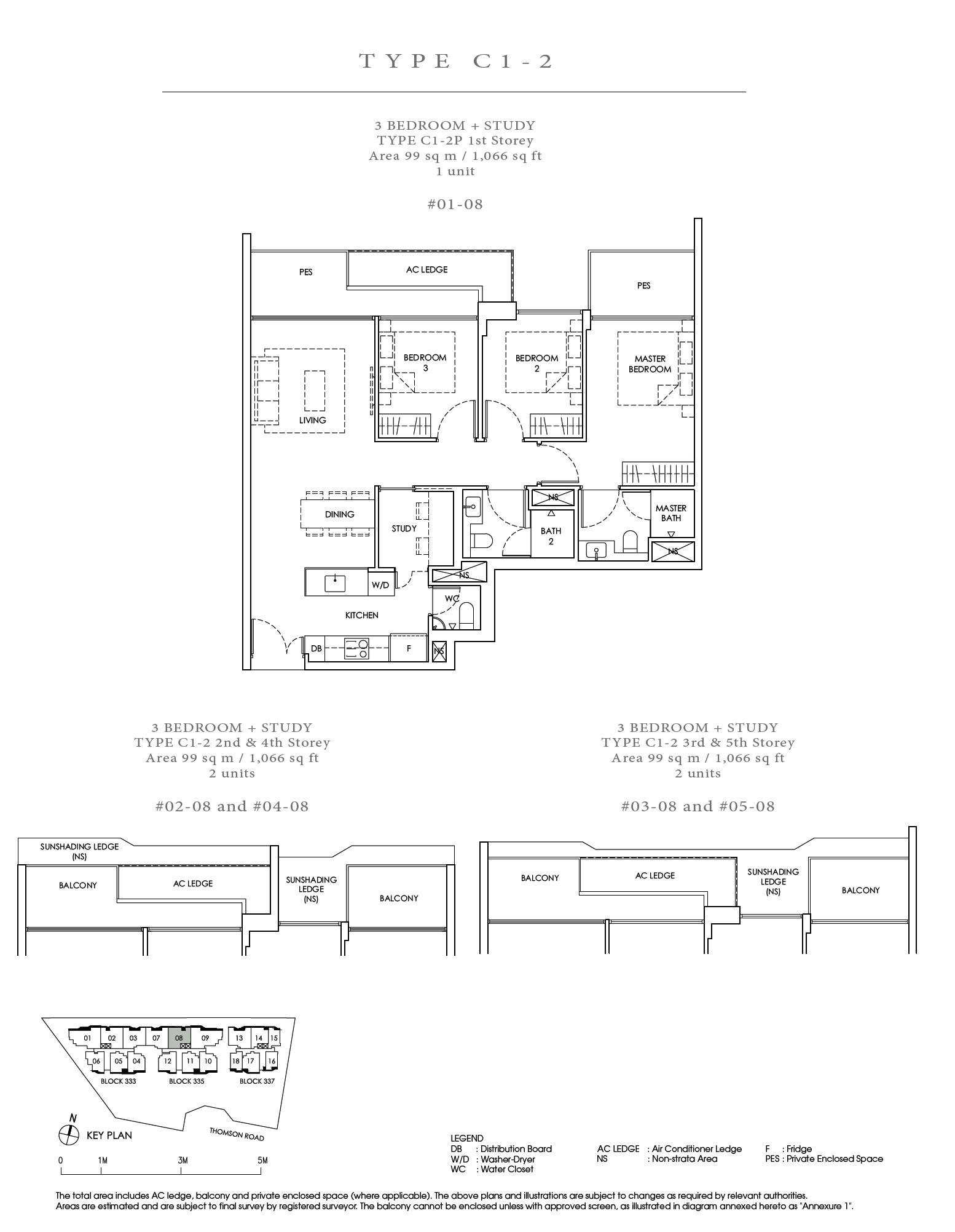
3 Bedroom + Study
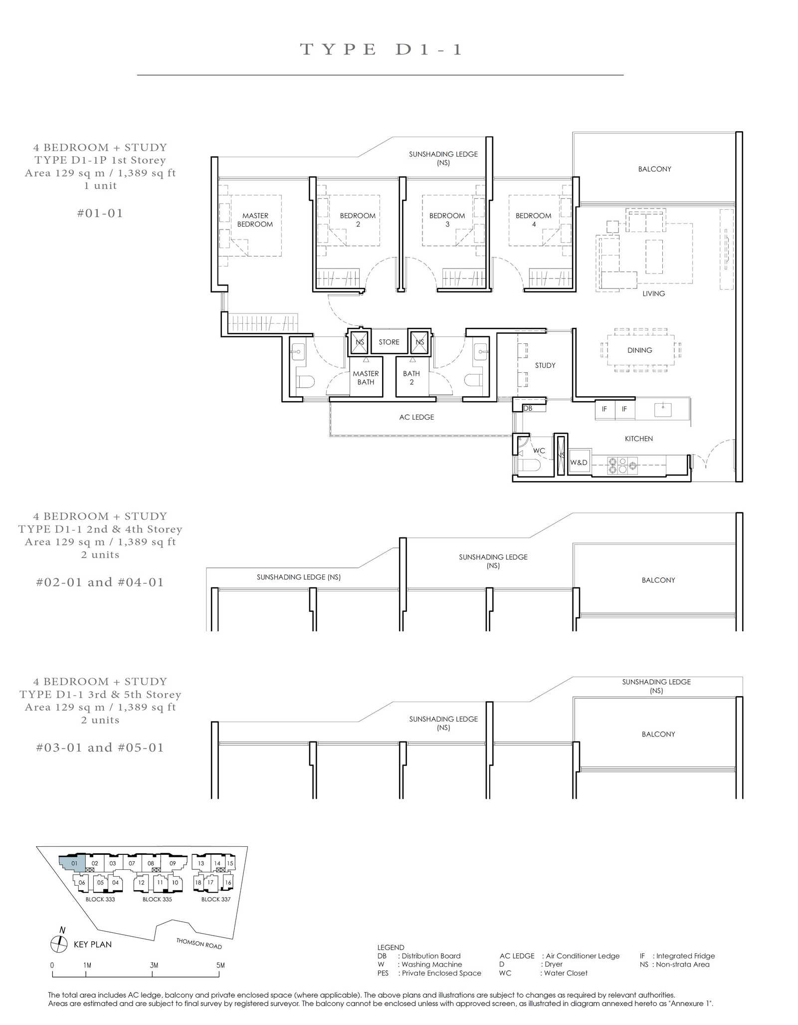
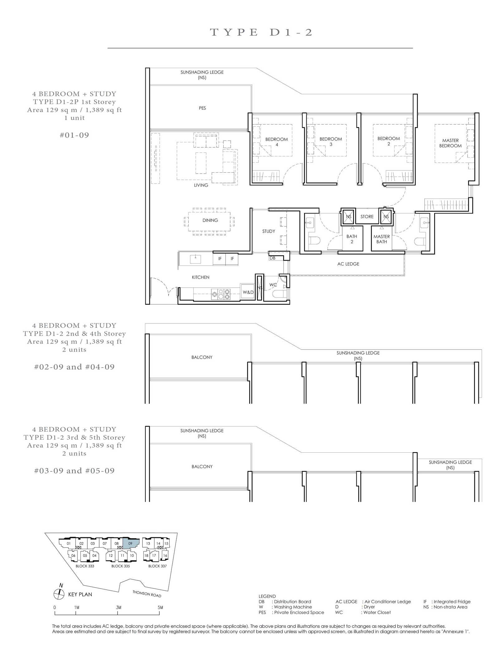
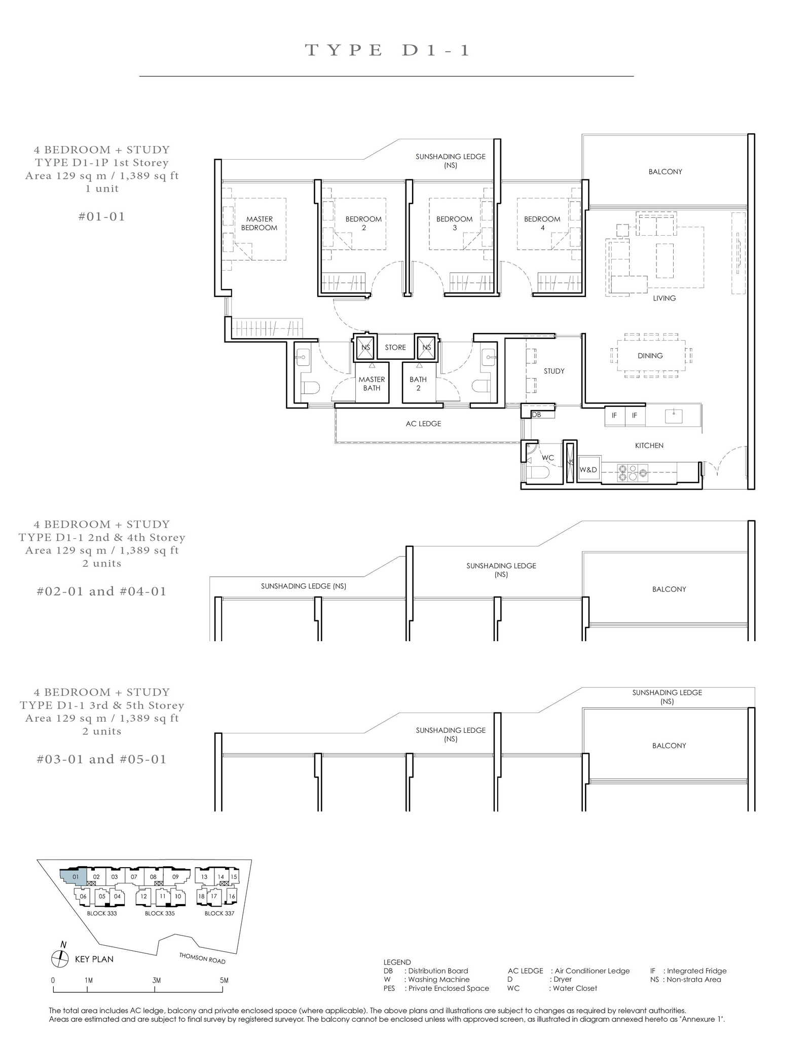
4 Bedroom + Study
A2P
A1
A1P
A3
A2
A3P
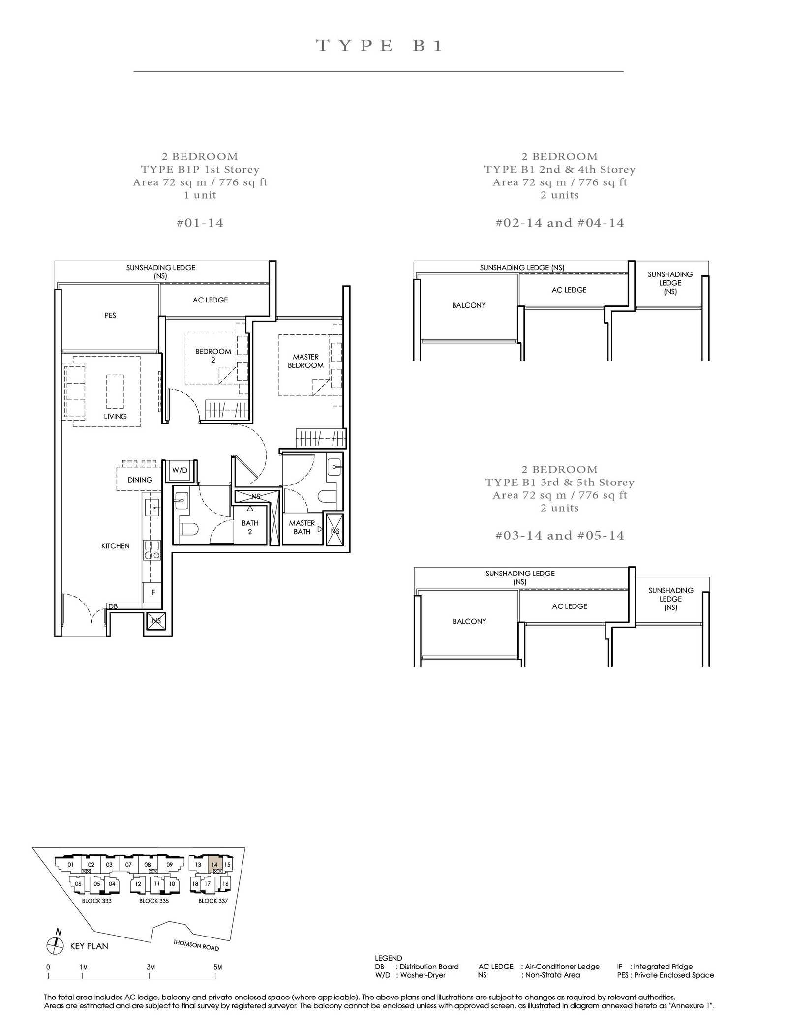
B1
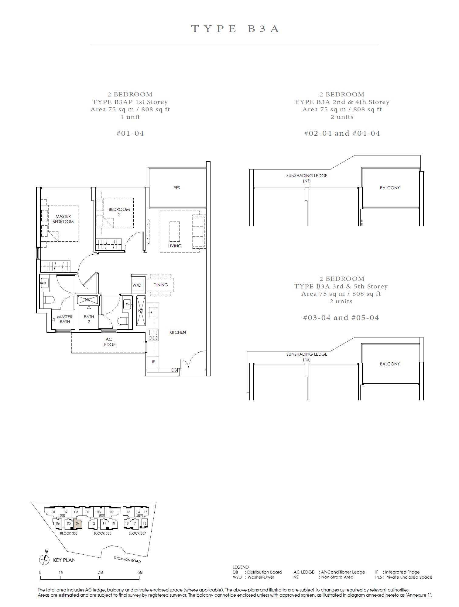
B3A
B1P
B3P
B2P
B2
B3
B3AP
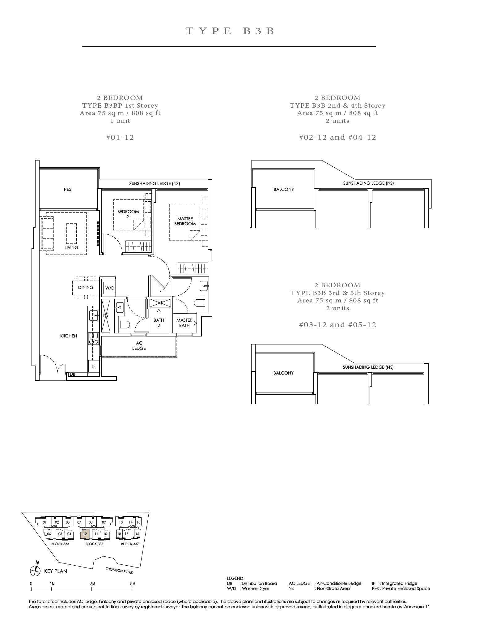
B3BP
B3B
B4-2
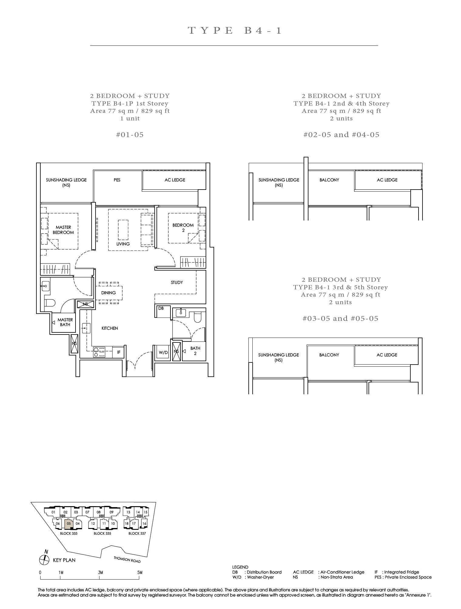
B4-1
B4-2P
B4-1P
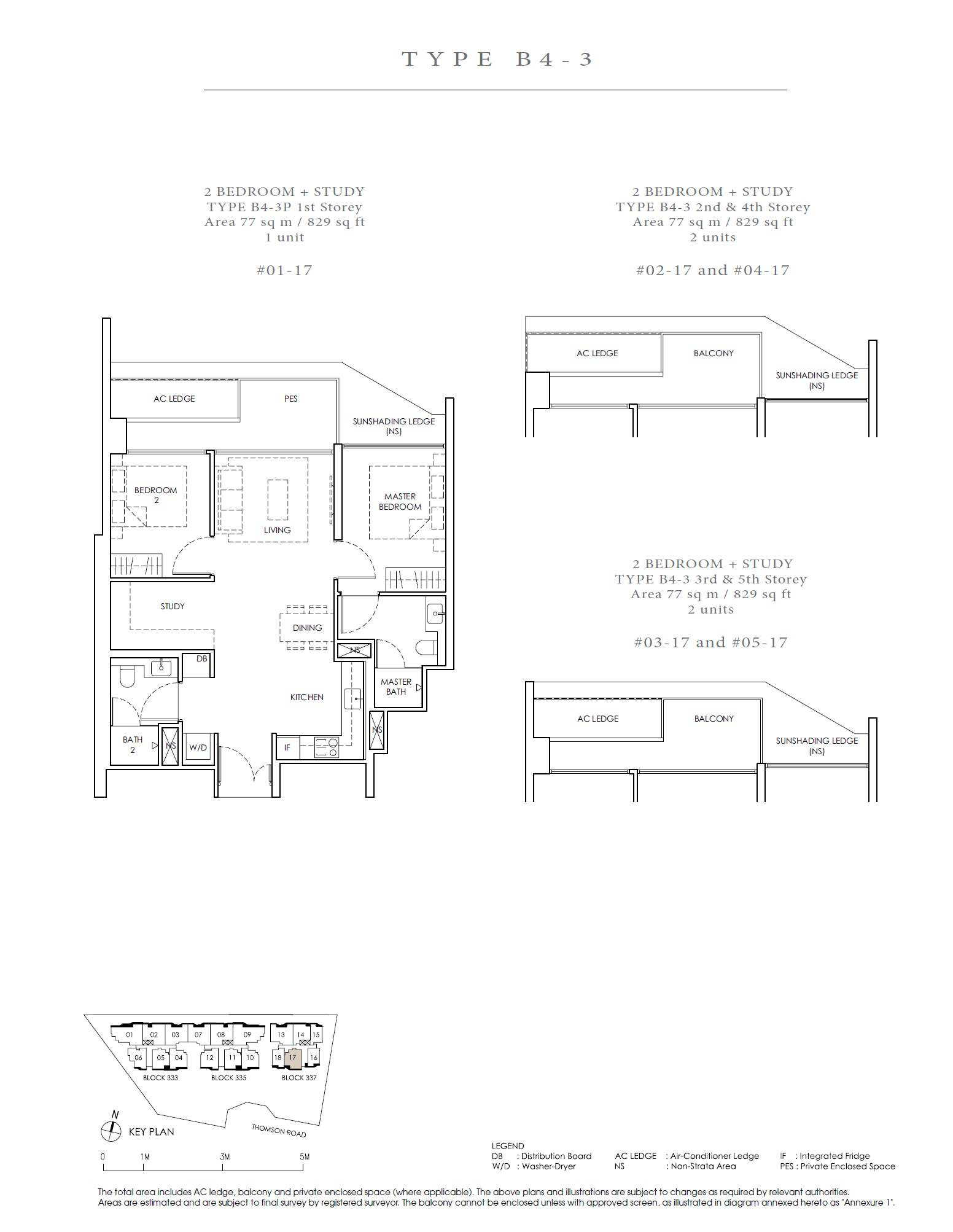
B4-3
B4-3P
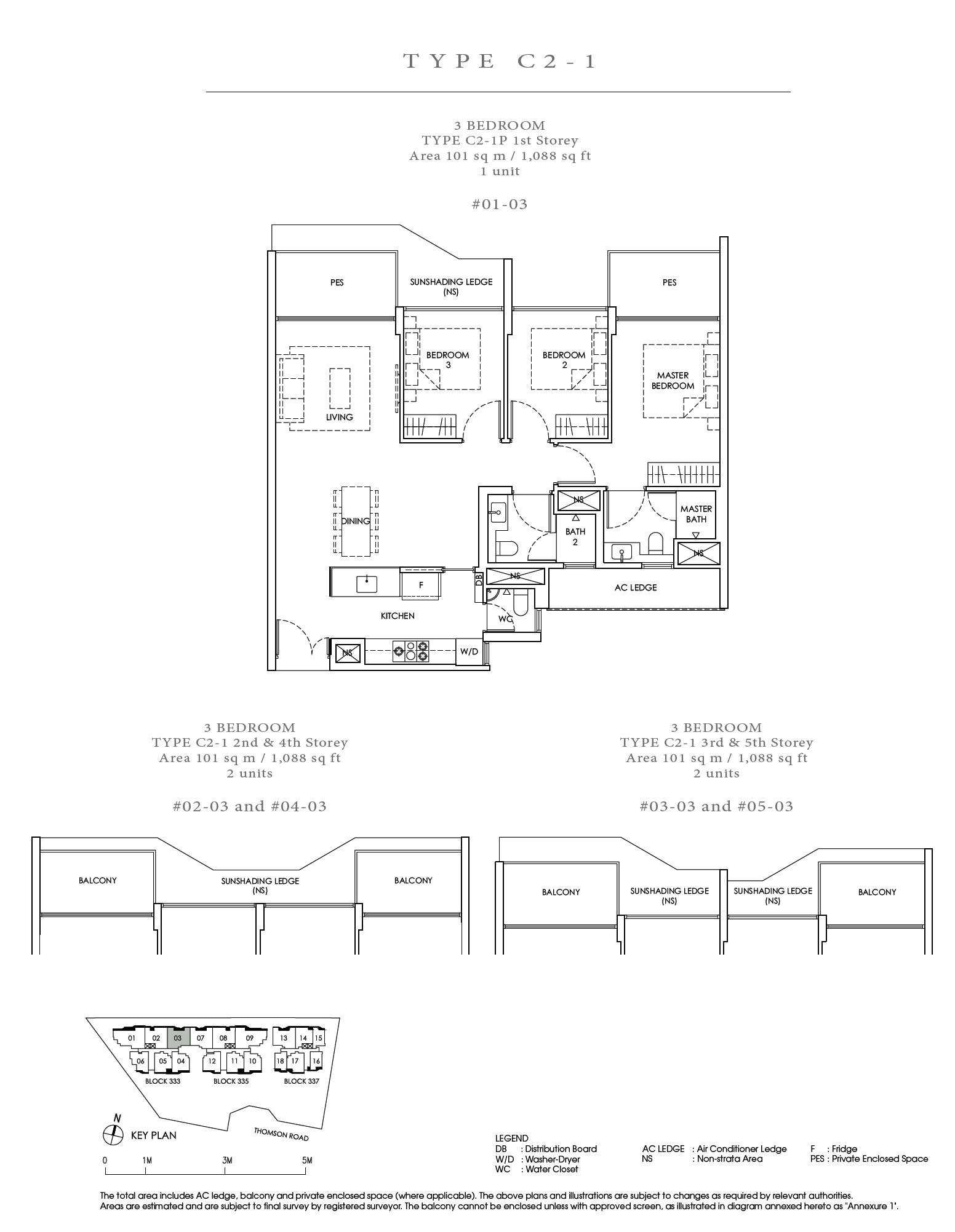
C2-1P
C2-1
C2-2P
C1-2P
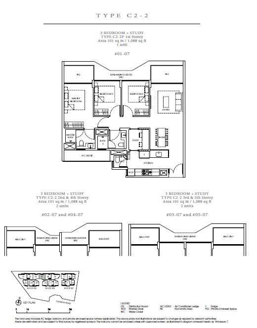
C2-2
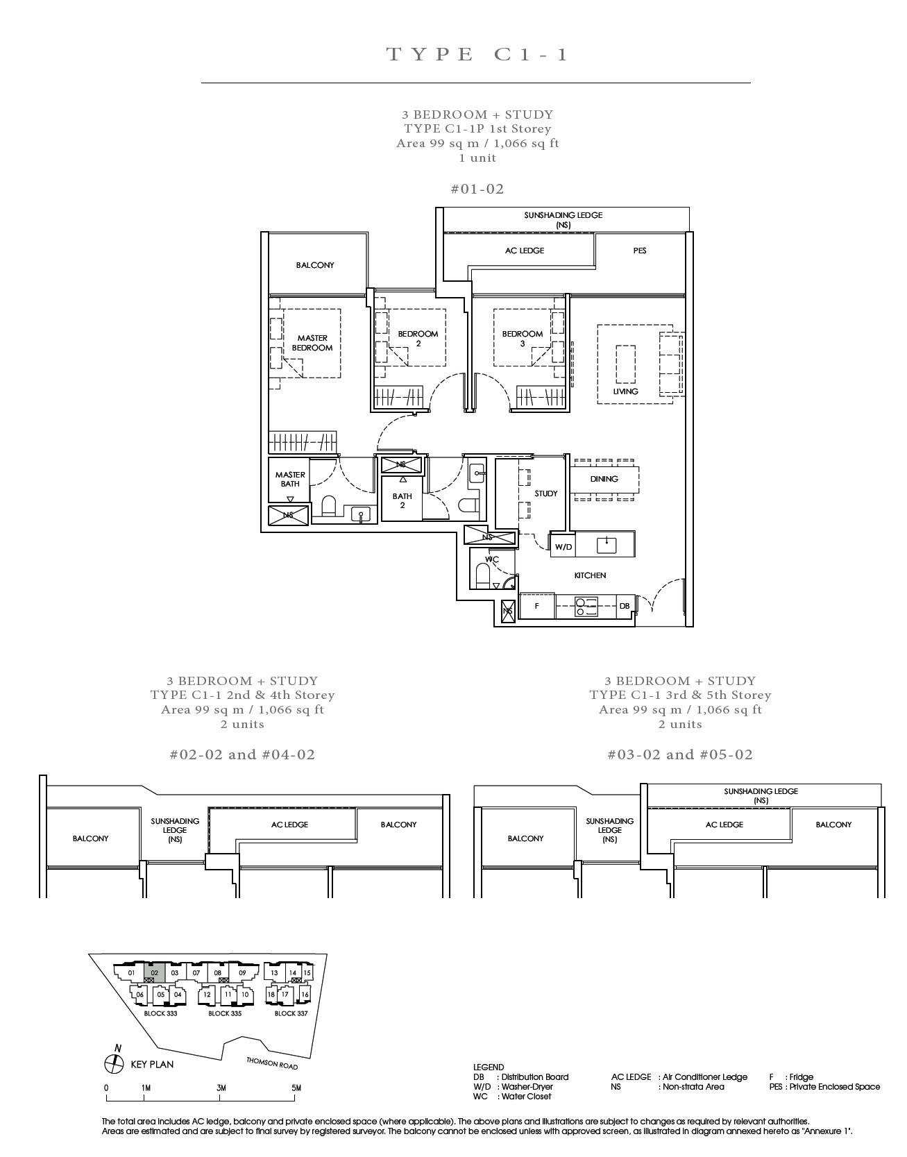
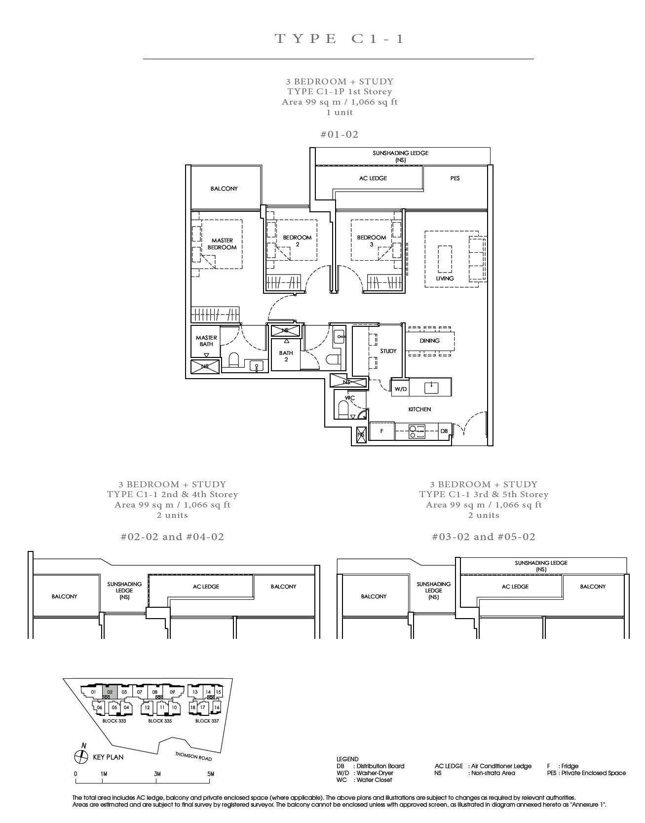
C1-1
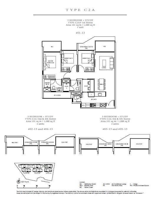
C2A
C2AP
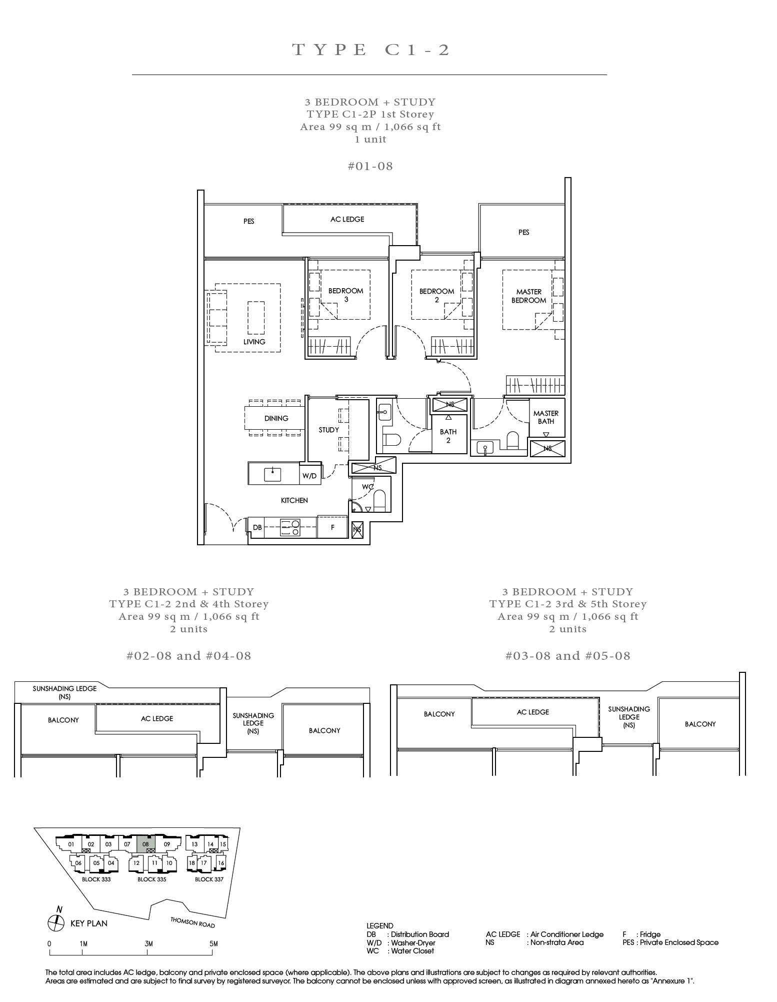
C1-2
C1-1P
D1-1
D1-2P
D1-1P
D1-2
Register Your Interest
Book an appointment to view show flat or send us an inquiry. We will get back to you as soon as possible.
By submitting this form, I agree to be contacted by the Peak Residence appointed sales team and its associates from 81330501-peak-residence.eraprojects.sg. I also agree to the Privacy Policy of this website.
Submit
Connect with WeChat
×
WeChat ID:
HP81330501
copy